Structure gauge
A structure gauge, also called the minimum clearance outline, is a diagram or physical structure that sets limits to the extent that bridges, tunnels and other infrastructure can encroach on rail vehicles. It specifies the height and width of platforms, tunnels and bridges, and the width of the doors that allow access to a warehouse from a rail siding. Specifications may include the minimum distance from rail vehicles to railway platforms, buildings, electrical equipment boxes, signal equipment, third rails or supports for overhead lines.[1]
| Part of a series on |
| Rail transport |
|---|
![]() |
|
|
| Infrastructure |
|
|
| Rolling stock |
|
|
| Passenger train |
|
|
| Miscellanea |
|
|
|

A related but separate gauge is the loading gauge: a diagram or physical structure that defines the maximum height and width dimensions in railway vehicles and their loads. The difference between these two gauges is called the clearance. The specified amount of clearance makes allowance for wobbling of rail vehicles at speed; consequently, in some circumstances a train may be permitted to go past a restricted clearance at very slow speed.
Road traffic application
The term can also be applied to the minimum size of road tunnels, the space beneath overpasses and the space within the superstructure of bridges, as well as doors into automobile repair shops, bus garages, filling stations, residential garages, multi-storey car parks, overhangs at drive-throughs and warehouses.
Accidents
.jpg.webp)
Motor vehicles hit railway bridges 1789 times in 2019 in the UK, where such incidents are known as bridge strikes, with several bridges being hit over 20 times in a single year. The total cost borne by the state was around £23 million.[2]
A 2.7 m (8 ft 10+1⁄4 in) high overpass bridge near St Petersburg is known as the "Bridge of Stupidity" because it is often struck by vehicles despite many warning signs. In May 2018, after it was struck for the 150th time by a GAZelle truck, a birthday cake was presented to the bridge. This made national news.[3][4]
Similarly, an 11 ft 8 in (3.56 m) overpass in Durham, North Carolina, USA, was frequently struck by vehicles, and made the news a number of times until it was raised in 2019.[5]
Infrared sensors which trigger warning signs when a high vehicle approaches were added to an underpass in Frauenfeld, Switzerland, only after several incidents.[6][7]
A similar situation exists at an underpass on Guy Street in Montreal.[8][9][10]
Another problem is the Montague Street Bridge in South Melbourne.
Gallery
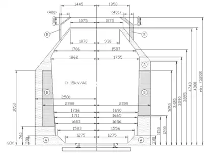
- Structure gauges

Structure gauge for a bridge or other wayside objects
hauteur libre = clear height
Niveau superieur des rails = Top of rails
German structure gauge showing (left side) limits to encroachment of the rail vehicle envelope on mainlines and (right side) secondary tracks 
Calibration bridge in Germany, used to indicate the maximum height of vehicles on approaching a railway bridge
See also
- Air draft, applies to bridges across navigable waterways
- Berne gauge
- Bridge
- Clearance car
- Cut
- Disadvantages of third rail (additional infrastructure restrictions)
- Engineering tolerance
- Loading gauge
- Railway platform
- Railway platform height
- Tunnel
- Wayobjects
References
- "Structure Gauge and Kinematic Envelope".
- "Wise up size up: Don't try it for size – know your height before you go". Network Rail. Retrieved 31 August 2021.
- Plavskaya, Yelena (May 27, 2018). "Петербуржцы подарили «мосту глупости» юбилейный торт" [Petersburgers Give “Bridge of Stupidity” a Birthday Cake]. Izvestiya.
- "150th Truck Gets Stuck Under St. Petersburg's 'Bridge of Stupidity'". The Moscow Times. May 28, 2018.
- "In the news". 11foot8.com. 24 April 2019.
- "Unterführung wird jetzt deppensicher gemacht" [Underpass is Deepened]. 20 Minuten.
- Hilzinger, Stefan. "Kanton und Stadt entschärfen die Frauenfelder Deppenfalle" [Canton and City Defuse the Frauenfelder Deppenfalle]. St. Galler Tagblatt.
- Impact! New warning system on Guy St. underpass aims to reduce truck accidents, AMT train delays
- IMPACT in action
- Truck removed
External links
- Transport Canada, Standard Respecting Railway Clearance
- GLOSSARY OF TERMS USED IN RAILROAD HIGH AND WIDE CLEARANCES
- Railway line clearances and car dimensions including weight ..., Volumes 87-90
- www.ipm.fraunhofer.de/railway
- Clearance Guidelines for Industrial Railways (BC)
- Transport Canada
