TT21
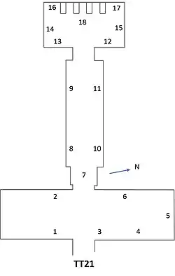
The Theban Tomb TT21 is located in Sheikh Abd el-Qurna, part of the Theban Necropolis, on the west bank of the Nile, opposite to Luxor. It is the burial place of the ancient Egyptian User,[1] who was a scribe and steward of king Tuthmosis I during the early Eighteenth Dynasty. User's wife was named Bakt.
| Theban tomb TT21 | |
|---|---|
| Burial site of User | |
![]() | |
| Location | Sheikh Abd el-Qurna, Theban Necropolis |
| Excavated by | Davies |
| User |
|---|
| Era: New Kingdom (1550–1069 BC) |
| Egyptian hieroglyphs |
See also
References
- Porter and Moss, Topographical Bibliography: The Theban Necropolis, pg 35-37
This article is issued from Wikipedia. The text is licensed under Creative Commons - Attribution - Sharealike. Additional terms may apply for the media files.
